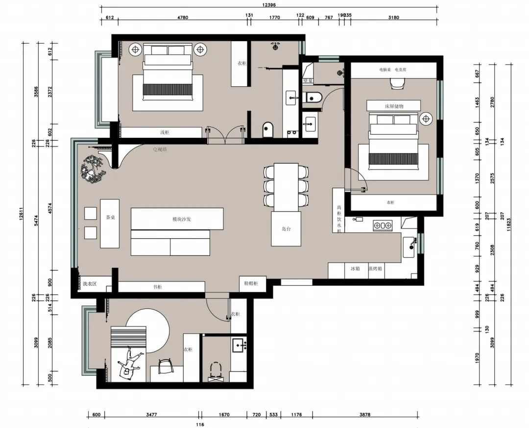
平面户型图 晨光漫过窗棂时,法式廊柱托起纤巧弧度,与哑光白石膏线缠绕出旧时光的优雅。留白处藏着克制的精致,胡桃木纹里凝着沉淀的温柔,老钱风的松弛质感,在光与影的细语中,舒展成从容的模样。 轻盈 · 美学 客厅以满墙收纳系统奠定基调,收纳柜与墙板同色一体衔接,隐藏灯带在玻璃柜门后晕开暖白柔光,将温馨藏进收纳细节,点亮玻璃柜门的轻盈。 对侧墙面则以晨雾白墙板为底,大理石局部拼接,衬出法式雕花的精致脉络。一侧圆弧造型墙板悄然转折,圆润曲面衔接自然,构思巧妙。 大横厅格局将阳台温柔纳入,弧形垭口收边,勾勒通透视野。通顶式家政柜严丝合缝嵌入洗烘机,双廊柱柜门线条纵向延伸,在柜门上形成节奏排列。 奢阔 · 尺度 餐厅与厨房以开放之姿对话。餐边柜采用中部镂空设计,以天然大理石背板,纹理如水墨氤氲。内嵌式直饮机,日常取水便捷从容,于妥帖实用中见精致。 中岛台与餐桌一体相连,延续了餐边柜的配色基调,让整个餐厨区浑然一体,更显空间开阔。 信步转入凹字形厨房,沉稳的黑色柜体勾勒出分明筋骨,利落的线条却未显冷硬:装饰线条的柔和弧度、台面与墙面的自然过渡。于理性秩序中,生发出优雅流畅的呼吸感。烹饪时既有井然有序,又不失法式生活的疏懒格调。 浪漫 · 秩序 衣柜延伸式悬空书桌,开放格顶部勾勒出柔和圆弧,成为心爱玩偶的专属展台,为空间注入一丝灵动的少女气息。 另一卧室则更强调秩序的构建。衣柜与室内木门采用同色系设计,消解了家具的突兀感。床尾整墙的白色收纳柜如饰面板般融入墙面,在将收纳力拉满的同时,展现出静谧而整洁的休憩氛围。 柜门免拉手设计,助力嵌入式柜体与墙面无缝衔接,没有多余的凸起线条,既维持了空间的整洁观感,又暗合法式风格对“隐奢”的追求,在暖白灯光的映衬下,材质本身的肌理与光泽悄然浮现。 空间的故事,在此刻归于宁静与和谐。生活的不疾不徐,在光与影的韵律中,悠然流淌。

梦天家居集团股份有限公司
嘉善生产基地:浙江省嘉善经济开发区长江路88号
庆元生产基地:浙江省庆元屏都综合新区金山大道58号

















浙公网安备 33042102000545号