地点:河北·承德
面积:170㎡
户型:平层
风格:意式轻奢
涂装:晨雾白、南山灰
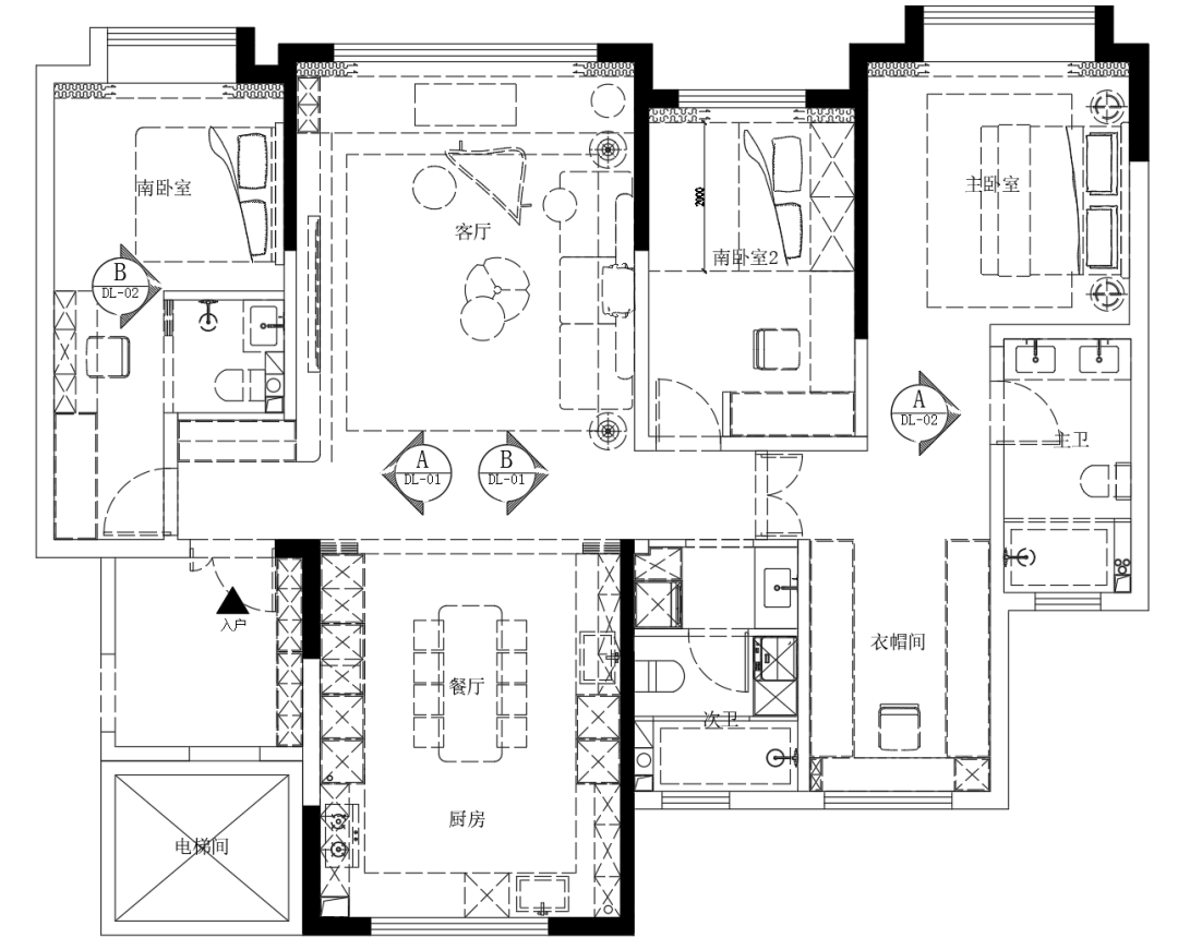
平面户型图 当时光的指针划过亚平宁半岛的古典乐章,停驻于二十一世纪的现代节拍,一个关于家的全新叙事便悄然开启。 本案不再是简单的风格复刻,而是一次基于现代生活方式的重新创作,以舒适与质感演绎出一场理性与浪漫交织的“意式轻奢”协奏曲。 视界 · 一体思维 客厅气韵通透,视野开阔。电视收纳柜以温润木质为主体,采用嵌入式设计巧妙容纳大尺寸电视;底部衬以优雅的大理石花色地台,一旁点缀的金属开放格,在深浅有致的色彩搭配中,勾勒出和谐而丰富的立体感。 视线转向沙发背景墙,南山灰的沉稳、晨雾白的清雅与天然石材的肌理智慧拼接,共同营造出干净大气的空间基调。 设计巧思延续至玄关,入户柜与电视柜一体成型,延续了整体的连贯美感。转角处以柔和的圆弧收边,不仅视觉温润更确保了安全;南山灰色块的穿插与底部留空设计,既构成了块面穿插的造型美,也暗藏了收纳拖鞋的实用功能。 秩序 · 理性美感 拉开铝合金玻璃移门组,步入式厨房空间感豁然开朗。大面积的灰调渲染出冷静轻奢的底调。整体橱柜采用免拉手设计,并将烤箱、冰箱等家电完美嵌入,线条平整利落,极大强化了空间的整体性与秩序感。 橱柜局部融入小面积的晨雾白进行调和,更显干净简洁。上柜下方精心设置的金属吊篮,便于收纳日常调味品,兼顾实用与便捷;再辅以隐藏式灯带的柔光,不仅提升了操作的安全性,更于细节处晕染出温暖的生活气息。 私域 · 定制哲学 卧室的每一处设计,都是对空间形态的精准回应。依墙定制的悬浮式书桌与收纳柜,不仅功能强大,其轻盈的体态更成为空间美学的一部分。 开放格内嵌入书籍,将收纳化为展示,轻松塑造出专注的阅读场域。上圆角柜门以柔和的弧线顺应空间棱角,让过渡更显自然与妥帖。 视觉焦点——床头背景墙,运用斜切与纵横板的组合设计,以独特的几何构图解构立面,赋予空间深刻的建筑感与不言而喻的轻奢格调。 于理性中见温度,在简约中藏奢华。以大开大合的格局气度,包容细微之处的贴心考量。静默陪伴着居者的日常,见证着每一个平凡的清晨与夜晚。


















浙公网安备 33042102000545号