地点:银川
面积:211㎡
户型:平层
风格:意式极简
涂装:玄茶·茶褐、月牙白、湖水绿
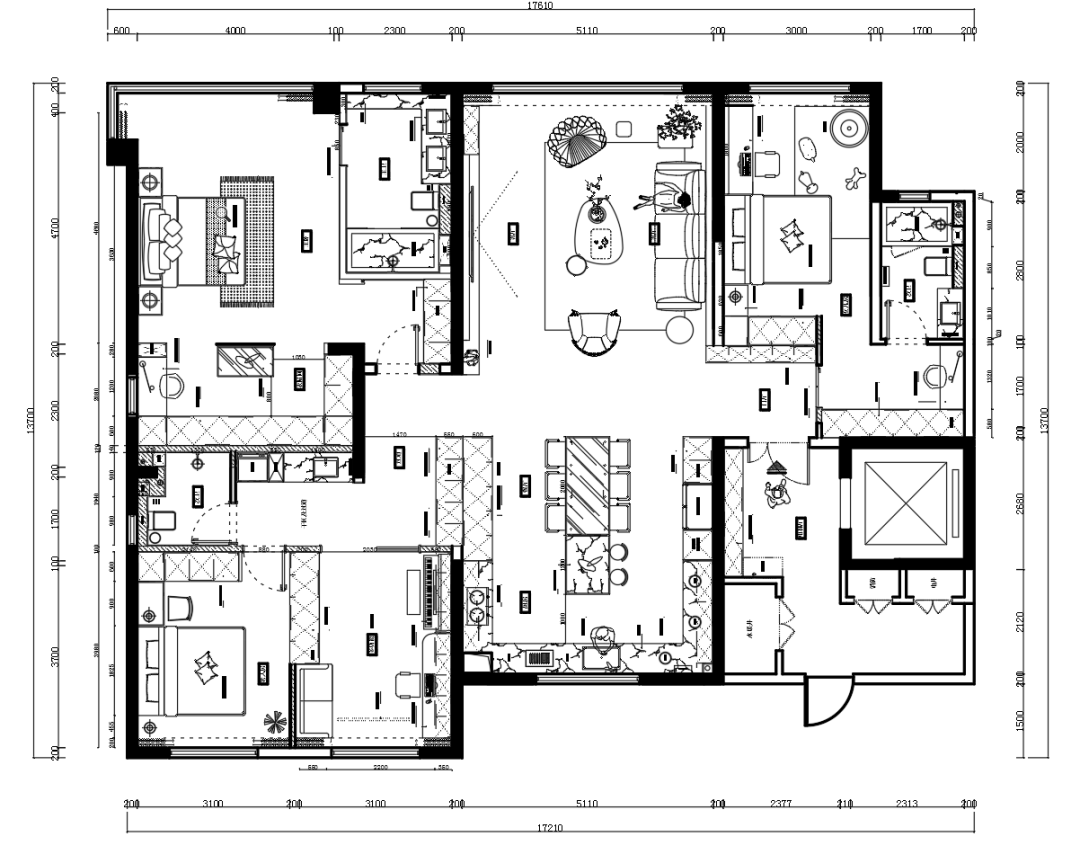
平面户型图
意式极简,将家居的本质从冗杂中抽离,艺术化凝练出一种摒弃浮夸、回归本真的生活态度。以一种静谧、高雅的姿态,勾勒出个性化的宜居美学画卷。
纯粹 · 包容
循着空间的转折与延伸,将入户玄关柜与客厅背景墙一体设计,既满足了日常收纳需求,又暗合了极简的功能主张。
以悬挑穿插的手法在入户空间造景,配合射灯、灯带渲染出独特的视觉效果。柜体悬空内嵌灯带,纯粹而包容,以柔和光线迎接归者的疲惫。
优雅 · 共生
LDK布局巧妙塑造出各区域独立而围合的界面关系,在松弛、共生的家居氛围里,享受舒适、静好的社交自由。
将意式优雅暗藏于纵横板的韵律中,在电视背景墙上轻轻挥洒,绘就看似不经意却又饱含质感的丰富层次。一字型收纳柜视觉轻盈,简约而灵动。开放格设计满足品味陈列需求,迎接着富有艺术气息和生活格调的物品。
开放式设计让烹饪不再是一场忙碌的奔波,而是一种情感纽带。从备餐到饮食,从容自如,情绪共享,在简约烟火中沉浸于味蕾的乐园。餐边柜采用铝合金玻璃柜门,器皿如展品般摆放,让每一次取用皆轻松而愉悦。
温馨 · 极简
主卧内置衣帽间,整体设计线条简洁流畅,没有丝毫冗余的勾勒,每一根线条都在低调地诉说着意式风格的精髓——简约而不失高雅。柜体的主色调内敛低奢,散发着一种静谧而深邃的气息。隐藏式灯带在层板边缘游走,光影间奏中如同意大利电影中充满艺术感的特写镜头,彰显出极简之美。
次卧床头背景墙通过拼色处理,将细腻纹理与现代质感完美结合。悬浮式床头柜以其轻巧实用的造型,彰显出精致之处。湖水绿色调打破了空间的沉闷感,更显自然与温馨。
以简明开放的设计理念,赋予居所新的物质与精神感受,让理想与感性重叠发生,解锁品质家居的奢雅本义。


















浙公网安备 33042102000545号