地点:平阳
面积:161㎡
户型:复式
风格:侘寂风
涂装:雅棕、定白
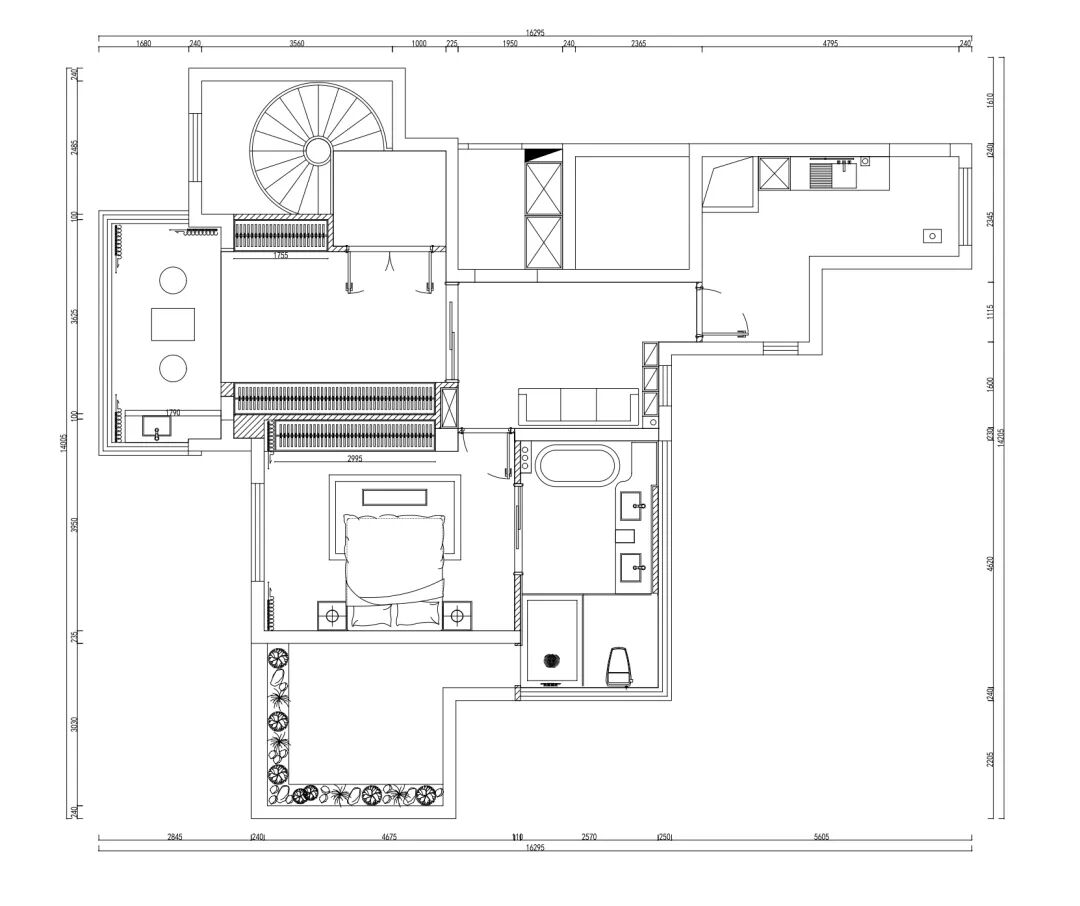
平面户型图(滑动可查看更多) 本案选择了当下所推崇的慢生活风格——侘寂风。侘寂风源于我国宋代道教,为一种东方禅宗的心境状态,通过简单纯粹的表达,整体空间大气优雅,彰显品质与品味,让生活质朴而有温度。 承载写意生活的向往 空间的艺术在于氛围的营造,低饱和度的色调,自由随性的布局,将沉稳内敛的韵味与轻快活泼的律动美好相融。简朴雅致,生机盎然。 开放一体的超大横厅,让木的温润、布艺的柔软、大理石的冷感,交织交缠,秩序相生,皆是美的纯粹表达。通顶式柜体藏露结合,在整体高级调性中多出几抹张力与轻盈。 洞见藏与现的艺术 巡步向内,封闭式收纳柜隐于过道空间,雅棕色调让静谧的气质自然生长,在藏与现的艺术转换间平添几分意境之美。 推开精致的花格木质移门,收纳柜+展示架的组合映入眼帘,洞见禅茶文玩的意蕴与底色。于此歇养心神,饮一杯茶,品一番滋味。 融入东方美学之精髓 在简洁安静中融入质朴的美,于衣帽收纳空间打造休闲一隅,既有现代风的仪式感,又兼具东方的古朴大气。 大面积定白色调铺就清丽婉约的空间情绪,加入雅棕的点睛之笔,可谓得东方美学之精髓。 丰韵敛于形而彰于神 恰当的尺度、体量与线条,丰韵尽敛于形,幽静渐生,将艺术中的时空感精妙表达而出。于床尾,定制一整墙的衣柜,一柜到顶设计,按比例做开放格设计,感受低调且具质感的感官体验。 在秩序之间,寻觅明确而优雅的品味。以质感、光线、肌理来渲染不同时刻的记忆,平板柜门精简有度,妥帖安放冬日的暖意,让居者倍感安心与温柔。 美不局限于绚烂与无暇,而更存在质朴、自然、简约的某些瞬间,由此觅得真正的自由精神,去体悟生活的美学真谛,使家的记忆能够恒久且弥新。


















浙公网安备 33042102000545号